Продаётся просторный коттедж вашей мечты площадью 385 квадратных метров на живописном участке в 20 соток в тихом и спокойном месте в районе 9-й Дачной. Идеальное решение для большой дружной семьи, ценящей комфорт, природу и спокойствие загородной жизни.

Дом предназначен для комфортного проживания круглый год благодаря продуманному инженерному оснащению и современным материалам строительства.
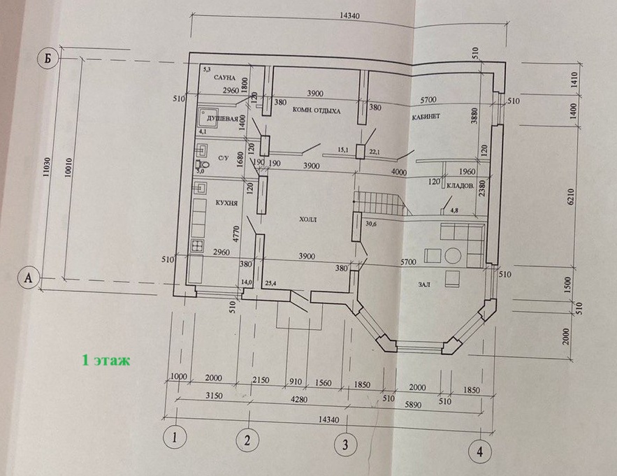
Стены выполнены из кирпича с дополнительным наружным утеплением фасада. Планировка продумана до мелочей и удовлетворит потребности любой семьи. (Планы этажей приложены).
Внутренняя отделка выполнена в тёплых оттенках и создает ощущение уюта и комфорта.
В доме предусмотрена просторная сауна, позволяющая расслабиться после напряжённого рабочего дня.
Третий этаж в черновой отделке.

Коммуникации:
Газ заведен в до, отопление и горячая вода от газового котла.
Вода - собственная скважина.
Канализация - септик.
Свет заведен в дом.

Просторный внутренний двор идеально подходит для семейных праздников и посиделок с друзьями.
В дом обустроены два отдельных входа, которые создают дополнительные удобства для гостей и членов семьи.
Два гаража обеспечивают парковку сразу для двух автомобилей.

На участке растут многочисленные фруктовые деревья и декоративные кустарники, создающие атмосферу райского уголка: малина, клубника, смородина, крыжовник , жимолость, ежевика, 2 больших грецких ореха , 2 груши, черешня , 6 яблонь , 4 абрикоса, персик , войлочная вишня, калина, сирень, розы, хвойники, лимонники, жасмин и огромное количество разнообразных многолетних цветов.
Участок огорожен забором, имеются автоматические ворота.

Удобное расположение дома позволяет быстро добраться до центра города. В шаговой доступности находится детский сад, школа, поликлиника, различные магазины и остановки.
В непосредственной близости располагаются Андреевские пруды и природный парк Кумысная поляна. Парк оборудован местами для занятий спортом и активного отдыха. Это спортивные площадки, велосипедные дорожки, пешеходные маршруты различной степени сложности, места для пикников и рыбалки.

Этот дом станет идеальным местом для вашей семьи, где каждый сможет почувствовать себя счастливым и защищённым. Покупая этот дом, вы приобретаете настоящий семейный очаг, наполненный теплом, любовью и гармонией природы вокруг вас.

Вопросы по телефону.
Ссылка на объявление: https://твойдом64.рф/sale/salehouse/47948
30 000 000
Юлия Васильевна Светланова


Саратовская область, Саратов, Ленинский район, улица 9-я Дачная, д 34
redeemДанный объект можно приобрести в ипотеку

Информация об объекте

Вид объектаКоттедж Тип продажиАльтернатива Площадь участка20 Площадь дома385 Материал стенКирпичный Год постройки2008 Количество этажей3 Количество спален6 СанузелВ доме ОтоплениеАвтономное газовое ГазЕсть ВодоснабжениеЕсть ГаражЕсть БаняЕсть КанализацияЕсть ЭлектричествоЕсть